Architektur ist vielfältig; wir stimmen sie auf die individuellen Bedürfnisse unserer Bauherren ab.
Unsere Referenzprojekte reichen vom Sanieren eines alten Klostergebäudes bis hin zum nachhaltigen Neubau in Holzkonstruktion.
Beispiele
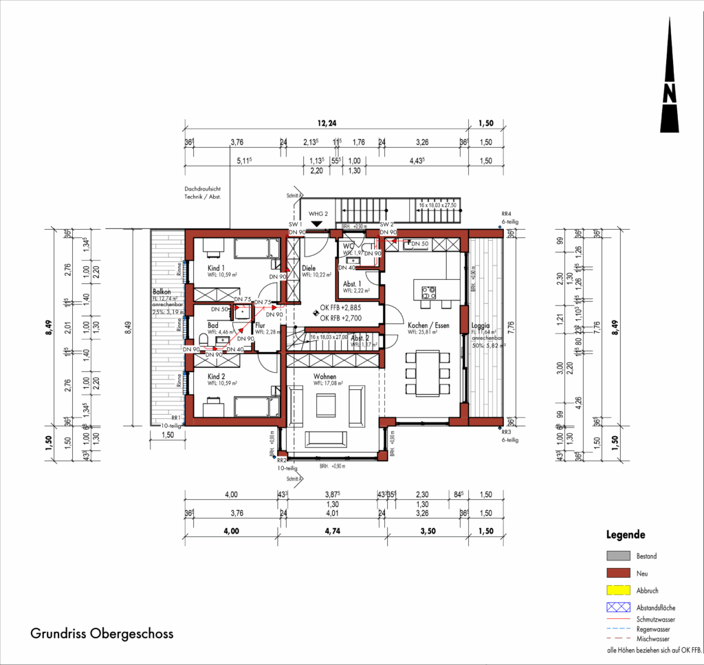
Neubau eines Zweifamilienhauses mit altersgerechter Wohneinheit im Erdgeschoss und großzügiger Wohnung im Obergeschoss über zwei Etagen in Bad Münster am Stein
Unsere Leistungen: Grundlagenermittlung, Vorplanung, Entwurfsplanung, Genehmigungsplanung
Wohnfläche: 256 m²
Kurzbeschreibung
Gewünscht wurde ein Zweifamilienhaus mit zwei großzügigen Wohneinheiten, gehobenen Standards. Eine davon barrierefrei im EG, die andere über zwei Etagen im Obergeschoß mit drei Balkonen. Die Wohnung im OG wird über ein außenliegendes Treppenhaus erschlossen.
So war mit unserer Planung eine optimale Ausnutzung des Grundstückes im Einklang mit der Bauaufsicht des Kreises möglich.



Umnutzung und energetische Sanierung eines ehemaligen Cafés mit Hotel zu insgesamt 12 Wohneinheiten (davon 9 altersgerecht) und 3 Gewerbeeinheiten, Bauvoranfrage/ Machbarkeitsstudie, Idar-Oberstein
Unsere Leistungen: Grundlagenermittlung, Bauvoranfrage, Machbarkeitsstudie
Wohn- und Gewerbefläche: 823 m²
Kurzbeschreibung: Ziel des Projektes ist es, ein lange leerstehendes, ortsbildprägendes Gebäude wieder mit Leben zu füllen und den in der Innenstadt bestehenden Bedarf an kleinen, altersgerechten Wohnungen zu decken und zur sozialen Durchmischung des Stadtteils beizutragen. Die Wohnungsgröße variiert zwischen 34-74 m².
Das Gebäudeensemble wird im rückwärtigen Bereich aufgestockt. Durch den Anbau eines Aufzugs kann die Barrierefreiheit gewährleistet werden. Unsere Planung ermöglicht es, das stadtbildprägende Gebäude zu sanieren und langfristig unter energetischer Optimierung zu erhalten.



Dachaufstockung eines Mehrfamilienhauses in Mainz mit einer großzügigen Dachgeschoßwohnung über zwei Etagen in der Mainzer Innenstadt
Unsere Leistungen: Grundlagenermittlung, Vorplanung, Entwurfsplanung, Genehmigungsplanung
Wohnfläche neu:135 m²
Kurzbeschreibung: Gewünscht wurde die Aufstockung eines Mehrfamilienhauses einem großzügigen Dachgeschoß über zwei Etagen mit kleiner Dachterrasse und zwei Balkonen. Mit unserer Planung konnte so neuer Wohnraum auf engem Raum geschaffen werden.
Weil keine Nachbarschaftszustimmung gewünscht wurde, mit der man neue Abstandsflächen hätte abstimmen müssen, wurde in engem Austausch mit der Baubehörde diese optimale Lösung für alle Beteiligten erarbeitet.



Energetische Sanierung eines Mehrfamilienhauses mit denkmalgeschützter Fassade in Idar-Oberstein
Unsere Leistungen: Grundlagenermittlung, Ausschreibung, Mitwirkung bei der Vergabe, Baubegleitung (Objektüberwachung)
Wohnfläche: 324 m²
Energiestandard vor der Sanierung: Worst Performance Building
Energiestandard nach der Sanierung: Effizienzhaus 85, Energieausweisklasse A
Kurzbeschreibung: Ein denkmalgeschütztes Gebäude erfordert ein besonderes Augenmerk und kreative Lösungen. Um die Stuckdecken zu erhalten und sichtbar zu lassen, wurde die Innendämmung an den Außenwänden mit etwas Abstand zur Decke angebracht und die Dämmstärke vergrößert. Dies führte dazu, dass eine indirekte Beleuchtung auf der Dämmung den Stuck anstrahlt und für ein behagliches Ambiente führt.



Energetische Sanierung mit barrierefreiem Ausbau einer Doppelhaushälfte in Pfaffen-Schwabenheim
Unsere Leistungen: Grundlagenermittlung, Vorplanung, Entwurfsplanung, Genehmigungsplanung, Ausschreibung, Mitwirkung bei der Vergabe, Baubegleitung(Objektüberwachung), Energieberatung
Wohnfläche: 161 m²
Energiestandard vor der Sanierung: Worst Performance Building
Energiestandard nach der Sanierung: Effizienzhaus 70 EE, Energieausweisklasse A
Kurzbeschreibung: Das Doppelhaus wurde 1789 in Zusammenhang mit einer Klosteranlage gebaut. Um das Erdgeschoss barrierefrei ausgestalten zu können, wurde die Garage im Haus zu einem neuen Schlafzimmer umgebaut. Der Altbau erreicht durch die umgesetzten, aufeinander abgestimmten energetischen Sanierungsmaßnahmen einen sehr guten Energiestandard mit gesteigerter Wohnqualität.



Energetische Sanierung einer Doppelhaushälfte mit Ausbau des Obergeschoßes und Anbau großzügiger Balkone in Mainz
Unsere Leistungen: Grundlagenermittlung, Vorplanung, Entwurfsplanung, Genehmigungsplanung, Ausführungsplanung, Ausschreibung, Mitwirkung bei der Vergabe, Baubegleitung (Objektüberwachung), Energieberatung
Wohnfläche: 162 m²
Energiestandard vor der Sanierung: Worst Performance Building
Energiestandard nach der Sanierung: Effizienzhaus 70 EE, Energieausweisklasse A
Kurzbeschreibung: Gewünscht wurde ein großzügiger Wohn-Essbereich im Erdgeschoß und je zwei Gauben zur Straßenseite und zur Gartenseite. Auf der Gartenseite entsteht eine großzügige Terrasse mit Balkon im Obergeschoß.
Ausbetonierte Zwischenräume zwischen den Sparren führten zu einer reinen Aufsparrendämmung.
Um das Dach des Wintergarten als Balkon nutzen zu können, war eine neue Deckenkonstruktion notwendig, da davor nur eine abgehängte Decke den Raum von den Dachziegeln trennte.


Aufstockung und energetische Sanierung eines Kleinhauses in einer Denkmalzone in Oberhausen /Appeltal
Unsere Leistungen: Grundlagenermittlung, Vorplanung, Entwurfsplanung, Genehmigungsplanung, Ausführungsplanung, Ausschreibung, Mitwirkung bei der Vergabe, Baubegleitung, Energieberatung
Wohnfläche: 123 m²
Energiestandard vor der Sanierung: Worst Performance Building
Energiestandard nach der Sanierung: Effizienzhaus 85 EE , Energieausweisklasse
Kurzbeschreibung: Der Wunsch des Bauherren war das Kleinhaus nach langem Leerstand wieder nutzbar zu machen. Hierfür wurde, in Absprache mit der unteren Denkmalschutzbehörde, eine Dachanhebung um 20 cm geplant, um bestimmte Räume im Erdgeschoß nutzbarer zu machen. Die energetische Sanierung erfolgt hier nur mit ökologischen Materialien
Eine Herausforderung stellt der Wunsch des Bauherrn dar, eine Pelletheizung für die Wärmeproduktion zu nutzen. Da nur ein kleiner Teil des Hauses mit einem Gewölbekeller unterkellert ist und dieser nur eine geringe Raumhöhe aufgewiesen hat, musste dieser tiefer gelegt werden, um die Standhöhe für den Ofen und ausreichend Platz für ein Pellet-Lager herstellen zu können.




